




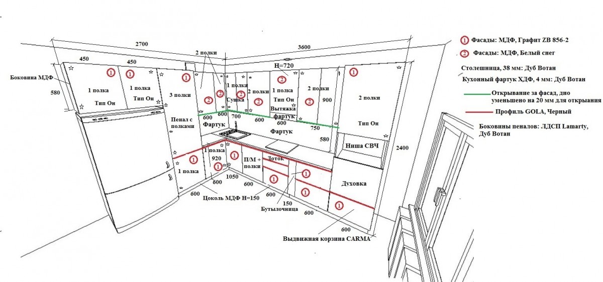
Фасады МДФ: Графит/Белый снег софт;
Столешница: Постформинг, 38 мм, Дуб Вотан;
Кухонный фартук: ХДФ, 4 мм Дуб Вотан;
Для открывания нижних модулей, установлен профиль Gola в черном цвете. Встроенную машину шириной 450 мм, закрыли фасадом 600 мм, добавим рядом узкие полочки на 150 мм для хранения моющих средств. В выдвижной ящик под духовкой, установили металлическую корзину для хранения сковородок.
На консультации с вами: